Appartamento in vendita a Grottammare
Grottammare
Zona: Centrale (tra La ss16 e ferrovia, fino al fiume Tesino) - via Pola, 47
€ 275.000
#161 mq
#4
#2

Appartamento in vendita a Grottammare - Centrale (tra La ss16 e ferrovia, fino al fiume Tesino) - via Pola, 47

Vendita
Cod. 33579
€ 275.000
Descrizione

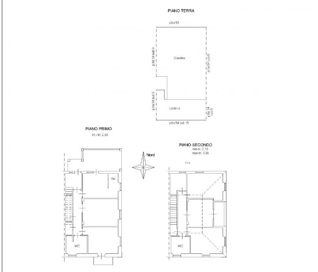
Comodo Appartamento articolato su due livelli, ai piani primo e secondo mansardato, senza ascensore, della superficie complessiva di mq 161 circa, composto da:
- piano primo di mq 86 - ingresso su disimpegno, cucina abitabile con camino, ampio soggiorno, una camera da letto, bagno con finestra, ripostiglio-lavanderia, piccolo guardaroba, un piccolo balcone di mq 2,5 circa, terrazzo di mq 18 circa;
- piano secondo mansardato di mq 75 - n. 3 grandi stanze, di cui una di esse è predisposta per uso cucina, ampio ripostiglio, bagno, balcone di mq 5 circa.
Completa la proprietà uno spazio lastricato, pavimentato al piano terra di mq 19, utile per sostare biciclette/moto, ed un giardino esclusivo di mq 59 circa
L'Appartamento, finito di realizzare nel '90, si mostra in buono stato di manutenzione, I pavimenti sono in monocottura, le finestre seminuove in legno con ampio vetrocamera, persiane in alluminio, il riscaldamento autonomo.
L'abitazione è inserita in una piccola palazzina, sita nella zona centralissima a pochi passi dal mare. Vive di tutte le comodità dettate dalla vicinanza ai negozi e servizi.
Considerata la sua straordinaria localizzazione, l'Appartamento è ideale per una grande unica abitazione, sia residenziale che turistica.

Caratteristiche
Scopri le caratteristiche di questo immobile
Nelle vicinanze
Servizi e infrastrutture della zona
Ubicazione immobile
Contattaci


Alcuni immobili che potrebbero interessarti
Appartamento in vendita a Grottammare
in Vendita
€ 370.000
Appartamento in vendita a Grottammare
Grottammare
Val Tesino (dall'imbocco fino a Ripatransone)
# 103 mq
# 2 Bagni
# 3 Camere
Cod. 33290
Appartamento in vendita a Grottammare
in Vendita
€ 230.000
Appartamento in vendita a Grottammare
Grottammare
Residenziale sud (sopra la ss16, a sud del Tesino)
# 124 mq
# 2 Bagni
# 3 Camere
Cod. 31909
Ultimo aggiornamento 28/08/2025
×
Codice
Contratto
Scegli dove cercare
Tipologia - multiscelta
Prezzo


Totale mq


Locali minimi
Bagni minimi
Camere minime
Altre opzioni - multiscelta