Casa cielo - terra in vendita a Ripatransone
Ripatransone
Zona: Centrale / Centro Storico (vecchio Incasato Medievale) - Via Margherita, 4
€ 230.000
#325 mq
#3
#2

Casa cielo - terra in vendita a Ripatransone - Centrale / Centro Storico (vecchio Incasato Medievale) - Via Margherita, 4

Vendita
Cod. 33553
€ 230.000
Classe energetica: G EP glnr: 268.66 kwh/㎡
Preferiti
Condividi
Descrizione

Affascinante dimora d'epoca con ampio giardino, anticamente destinata come convento ed oggi utilizzata come elegante residenza, sita nel magnifico centro storico di Ripatransone con l'affaccio panoramico sulla piazzetta prospiciente, sul borgo, sulle colline e vallate circostanti........ una sbirciata sul mare.
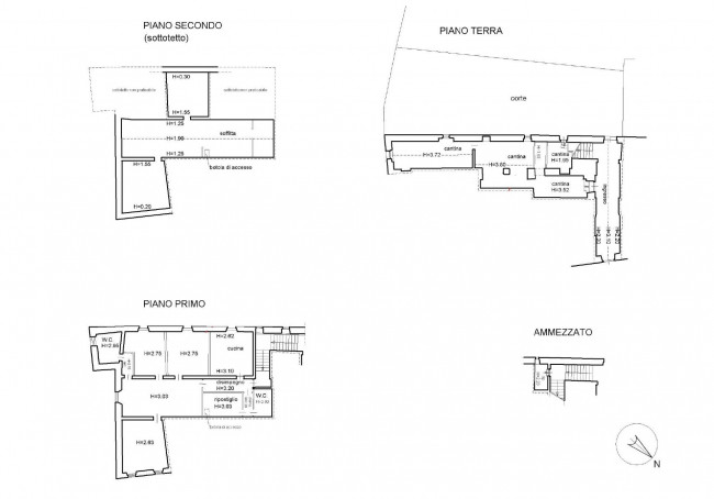
La proprietà, articolata su due livelli oltre la soffitta, è in possesso di un ingresso autonomo d'impostazione nobiliare, costituito da un ampio-lungo vano arricchito da volte a crociera con mattoni a faccia vista e pavimentazione in cotto originale.
Essa è costituita da:
- al piano terra - locali vari per complessivi mq 140 circa, in buona parte architettonicamente pregiato da volte a crociera e destinato a cantine-ripostigli, ci sono alcuni gradini di dislivello con il giardino di cui appresso; ampio giardino di mq 190 circa con uno storico pozzo;
- al piano ammezzato – piccolo locale di mq 3,5 circa, ex acetaia;
- al piano primo l'abitazione di mq 185 circa, collegato al piano inferiore da una bellissima ampia scala rifinita con antichi mattoni a faccia vista – ampio ingresso, cucina abitabile con camino, grandissimo soggiorno, d'antica impostazione, dal quale distribuiscono le tre stanze da letto, due bagni, ampio ripostiglio-lavanderia con scala di collegamento con il sovrastante piano soffitta sottotetto (allo stato grezzo). La pavimentazione dell'ingresso-corridoio e dell'ampio soggiorno sono in cotto originale.
L'antica dimora, seppure abbia mantenuto in gran parte il carattere architettonico originario, soprattutto nell'ampio ingresso al piano terra e nell'abitazione del primo piano si mostra sostanzialmente in un discreto stato, grazie ai vari lavori di manutenzione effettuati nel tempo….mentre i locali al piano terra necessitano di una ristrutturazione totale, mai effettuata prima. Attualmente il riscaldamento è assente, l'impiantistica da rifare, i bagni seppur funzionanti sono da ristrutturare.
Insomma, un bene importante che richiede un attento recupero dell'esistente per una conservazione rigorosa dell'originario stile architettonico, tuttavia senza rinunciare ad una migliore funzionalità e tecnologia.
Grazie alla sua centralissima ubicazione, i principali negozi e i servizi sono a due passi……….Distanza dal mare km 13 circa.
Ottima soluzione per realizzare una elegante residenza d'epoca, oppure una raffinata ed affascinante struttura ricettiva in uno dei borghi storici più belli del territorio.

Caratteristiche
Scopri le caratteristiche di questo immobile
Nelle vicinanze
Servizi e infrastrutture della zona
Ubicazione immobile
Contattaci


Alcuni immobili che potrebbero interessarti
Casa cielo - terra in vendita a Ripatransone
in Vendita
€ 147.000
Casa cielo - terra in vendita a Ripatransone
Ripatransone
San Savino
# 537 mq
# 6 Bagni
# 7 Camere
Cod. 32111
Casa cielo - terra in vendita a Ripatransone
in Vendita
€ 164.000
Casa cielo - terra in vendita a Ripatransone
Ripatransone
Trivio
# 280 mq
# 1 Bagni
# 4 Camere
Cod. 29701
Ultimo aggiornamento 27/10/2025
×
Codice
Contratto
Scegli dove cercare
Tipologia - multiscelta
Prezzo


Totale mq


Locali minimi
Bagni minimi
Camere minime
Altre opzioni - multiscelta